
“我有一所房子,面朝大海,春暖花开。”
古今中外,房子对人们不仅是一处居所,更是身心的栖息地,是自主选择的一种生活方式。房子所处的位置环境、内部构造,更是能代表着屋主所向往的生活。有人向往都市便捷热闹的生活,有人偏好归隐山林一般的隐士生活......
而本次的屋主便是后者,在阿那亚·雾灵山的深处,她定下一套123㎡的房子,每次推开窗,她想要的不是逃离世界的归隐,而是一场“生活在别处”的温柔实验——这123㎡不仅是一套房子,更是她心中面朝山林、春暖花开的“另一种人生”。
但故事总有转折,精装交付的房子无法满足个性化的理想,空间完整,生活却无法落脚。于是,推倒重来成为一场必然的仪式——让山风、月光与笑声,真正住进来。

改造前、后对比图


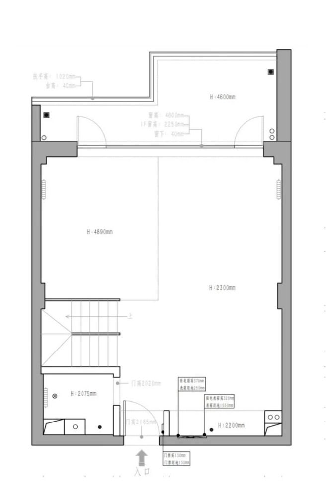
原始户型图


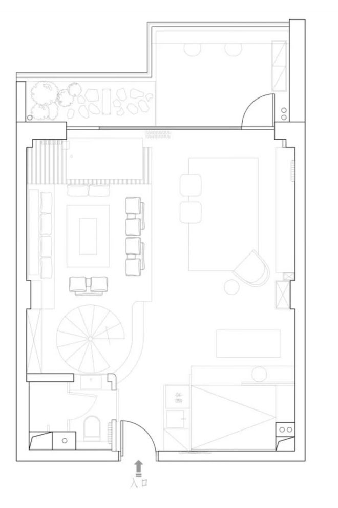
改造后平面布局图
屋主希望将“民宿经营”与“家庭度假”两种生活需求融合在一起,有更多的休憩、互动、放松的生活场景。设计师对其进行了针对性改造:
· 亲子动线:打破传统空间界限,建立滑梯、爬桶与旋转楼梯组成的立体亲子动线。
· 疗愈场景:将多功能泡汤区引入景观窗边,在此可开启多种休憩疗愈方式。
· 度假模式:去厨房化,增设茶室+休闲区,适配度假生活模式;去传统卧室化,将卧室解读成另一种诗意空间。
· 收纳系统:全屋定制隐形收纳,兼顾民宿经营需求与家庭储物功能。



这里没有传统意义上的客厅,也没有特定的儿童乐园,而是将多种功能空间融合在一起,形成一个充满互动性、惊喜的、灵活的复合场域。孩子的活动空间不再受限、大人的生活也可以丰富多样。整个空间也瞬间活了起来,竖向的层次让公区拥有更开放的视野,也由此创造出更多意想不到的互动可能。


利用地台抬高的空间,是孩子与大人都很喜爱的场所,可围坐、可冥想、可穿梭,搭建的旋转楼梯与二层形成了串联,在其中还巧妙嵌入一道小滑梯,多了更多趣味性。“儿童乐园之感”被悄然融入进来,孩子们自然更喜欢。


除了旋转楼梯,侧边还有一出神秘有趣的甬道,将超级马里奥冒险之旅搬到了家中。甬道巧妙串联起滑梯出口与休闲区,形成一个完整的冒险循环:孩子们可以钻入桶中,然后再顺着滑梯俯冲,趣味十足、又小有冒险之感。



山林中,窗景是不可辜负的。而在这里,竟然将泡汤区搬到了窗边,“山景泡汤”,与自然交融,奢侈迷人、却又那么自在和谐。潺潺流水、树影婆娑,自然静谧,一场身心疗愈之旅就此蔓延开来。


泡汤—地台—窗景,这三者的完美搭配,设计师也是经过了各种努力才搭建而成。还有更为巧妙的是,设计师在泡汤池上设计了一面严丝合缝的桂木盖板,又让其多了另一重身份。


盖板开合着,这里是泡汤池。合上盖板,这里则化身成一面书桌,可阅读、思考,倚窗而建,听习习春风、看郁郁葱葱......亦是一种心灵上的洗涤。也不必担心桂木板会变形等,这种材质不仅遇水稳定,更会在湿润时散发自然木香,给每一次使用增加了一重感官治愈。


围坐谈天、静坐冥想、玩耍跳跃、怡然泡汤......多样的空间属性会不自觉开启多样的生活方式,清晨傍晚、四季流转,这里不断上演着各种“生活的意义”。当然,它也在悄然诉说着:享受当下、珍惜当下,生活会越发鲜活自在。


当城市的喧嚣被群山温柔阻隔,当居所被树林绵延包围,让这里多了份家的温馨之感、自然的疗愈魅力。仿佛只需坐在这里,便足以满血复活。


而墙上四面连续的镜面,则是为了开阔会客厅的进深,增加空间感,同时也提升了趣味互动性。镜面中反射出来的柔和光线、室外景色,也给其增添了不少的独特景观,让空间在虚实之间散发魅力。


会客区连接小阳台,与自然更为贴近。沿护栏一体化小桌实用又浪漫,可坐在这里喝咖啡赏风景、看书、发呆、谈天说地......简约设计、丰富生活。还有“竹木栈道”材质的地面、角落里的马醉木,让其与远山遥相呼应,依山而建、融入其中,兼具生活感悟与自然美学。



舍弃原本的精装厨房,将其打造一处充满禅意的空间,更符合度假属性。天然石材散发温润静谧之感,一方小天地却拥有大格局的气派。

榻榻米包间式卧区,让禅室更有包裹感。在推拉门开合间转化着姿态,使得这里可以是独身一人修习冥想的静室,也可以是三五好友对坐品茗的佳地。茶香与线香萦绕于此,清退浊气、洗净心灵,自然而然找到那份内心的归属感。


二楼的主卧是个充满浪漫气息的场域,墙上竟然向外“长”出了一个会呼吸的泡泡球,梦幻又有趣,互动感十足,令人忍不住想去体验一番。球体内部是安全的,可容纳成人静坐或孩子嬉戏,如此一来,主卧不再是单纯的休憩空间,更多了几分不俗的趣味。

为了解决主卧的隐私性,在泡泡球的位置还独创了一面弧形幽灵门,像个通往神秘世界的通道。无论开合,都营造出了一场温柔的白日梦。


在主卧,内心那些许被隐藏很久的、不切实际的幻想,都不由自主得让它们释放了出来;那些疲惫的糟糕的情绪, 都让它们在此消融掉。因为这里不仅是休憩的卧室,更是一场被“梦”筑造出来的温柔之乡。


次卧则更有诗意,休憩区以“树洞”的形式展示出来,包裹感与安全感满满,钻进柔和的洞口,入睡进温柔的梦乡。这样的树屋结构也更契合当下所处的环境,让孩子们有了更多探索自然的乐趣。当然,其实无论大人、孩子,置身于此都无妨,大人会在此找到内心的宁静、孩子们在此会获得天马行空的想象...这便是这个空间的魅力所在。


次卧的窗景更有魅力,旁边又特意设计了地台来赏景、放松...席地而坐,无拘无束,就像入住进了一个森林小屋。看春日嫩芽萌生、夏日树影斑驳、秋日露水清透、冬日白雪皑皑,窗景相伴、气候宜人,又那么得静谧迷人,怎会不令人向往。


改造后的三分离卫生间系统舒适便捷、又简约大气。设计师将一层卫生间的洗手台外移至靠近入户的位置,打造成一个集洗手、收纳、洗衣区于一体的复合功能区,动线清晰合理、在日常使用中会慢慢感知。


紧凑的布局、极简的设计、隐藏式呈现,将卫生间的多样功能区都细腻打造了出来,不暴露出任何“马脚”,只呈现舒适的环境,不得不佩服设计师们的良苦用心。

从房子变成家,需要层层抽丝剥茧,去探索、去钻研,去融入。如今这处位于阿那亚·雾灵山的房子,最终有了属于它该有的样子,有了它独特的“家”的魅力。这里可以是民宿,为更多的人带去轻松自然的氛围、不一样的山林生活;这里也可以是家庭度假屋,陪伴家人体验丰富多样的生活方式,暂且远离喧嚣,只享受当下。
编辑|Kiki
文字|葡萄
设计与图片来源|七巧天工室内设计




联系电话:18610562898
联系地址:北京市海淀区海淀西大街72中关村创业大街拓荒族